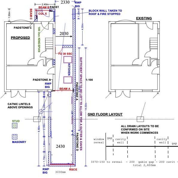
Large extension with loft vaulted roof as per a loft
Simon and his team from Sheffield Loft Conversions transformed our dark side elevation into a beautiful, light and airy master bedroom, making the room bigger and creating lots of new storage space. It really is the most beautiful room in the house along with a new kitchen area down the side .
Working with Simon was a pleasure from the outset, you know what you’re getting and when you’re getting it and we couldn’t be happier. I wouldn’t hesitate t recommend Sheffield Loft Conversions. Kay and Dave, Sheffield.